5123五四海开奖一站数计学院办公用房改造招标公告:WYXYGC2015—42

发布日期:2015-11-24浏览次数:469

5123五四海开奖一站数计学院办公用房改造招标公告:WYXYGC201542

一、项目名称:5123五四海开奖一站数计学院办公用房改造

二、项目编号:WYXYGC201542

三、招标方式:校内公开招标

四、工程内容: 5123五四海开奖一站数计学院办公用房改造工程(工程内容具体以工程预算审核书、工程清单编制说明为准)。

五、工期要求:30个日历天

 六、预算审核价101134.00元(含暂列金9000元)

 七、投标人资质:装饰装修或房建三级及以上资质

八、投标保证金:贰仟元整投标保证金只接受投标人对公企业帐户银行转账,不接受其它方式缴纳投标保证金,且投标方必须保证投标保证金在投标截止时间前到达5123五四海开奖一站(开户银行:武夷山市建行;开户名称:5123五四海开奖一站;银行帐号:35001676307052502243。注:不按规定缴纳投标保证金的投标文件视为无效。

备注: 投标保证金须注明“5123五四海开奖一站数计学院办公用房改造工程” 投标保证金。

九、评标方法:采取资格标合格,按预算审核价下浮10%随机抽签确认中标人的方法(须实质上响应招标文件要求),

十、投标人须于2015`12月2 下午300分前将投标文件递交至瑞樟1-205

十二、投标人对招标文件如有疑问,必须在投标截止时间1日前,将问题以书面的形式提交到5123五四海开奖一站资产管理办公室,口头提交质疑澄清的问题不予接受。招标文件的修改、补充或澄清招标文件的修改将通过武夷学5123五四海开奖一站资产管理办公室网站公告栏(http://www.nptc.edu.cn/jg/zcb/)发布,一经网站发布将视同已告知各投标人。

 联系人:刘老师(电话及传真:0599-5136100

  5123五四海开奖一站资产管理处

201511 24

 数计学院办公用房改造招标文件

数计学院办公用房改造

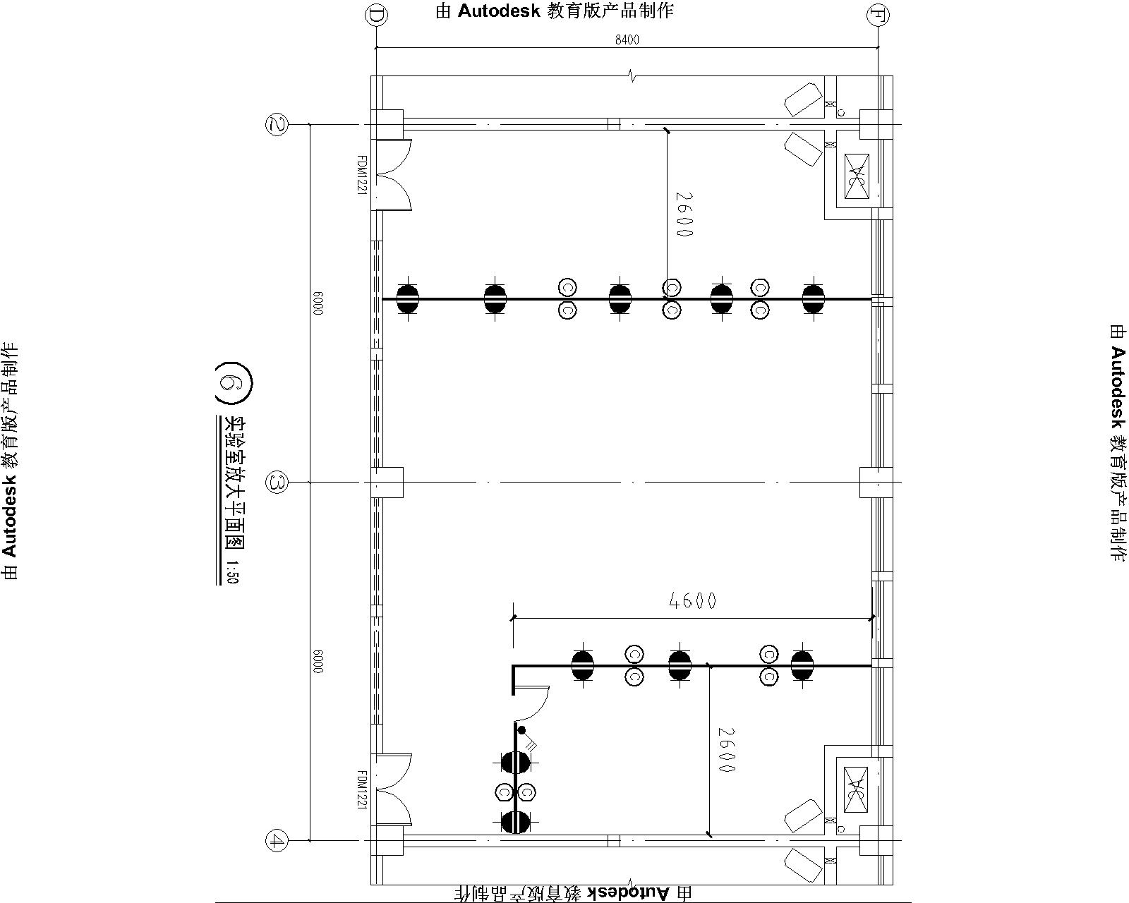
隔墙示意图1

隔墙示意图2